top of page
Garage & Loft Conversions
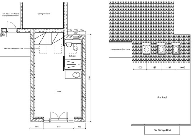
We offer full design works for planning permission on garage and loft conversions.
Loft Conversions




Garage Conversions



bottom of page
We offer full design works for planning permission on garage and loft conversions.






